Acords aprovats al ple ordinari d'octubre
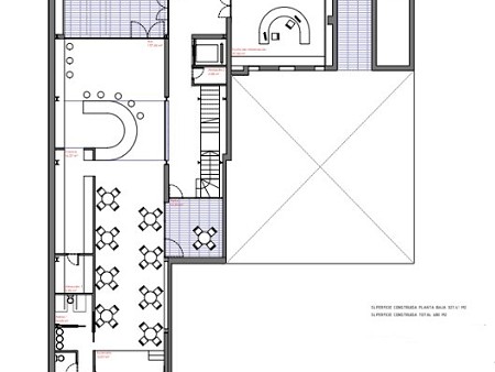
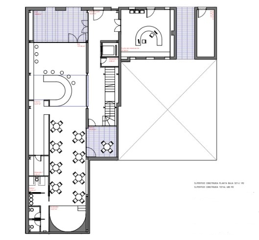
Aquest dijous 30 d’octubre, el ple de l'Ajuntament de Pedreguer aprovava, per unanimitat, el projecte d’execució per a la rehabilitació de l’edifici "Centre Artístic Musical", amb un pressupost d’execució de contracta de 1.185.773,75 €, IVA exclòs (1.434.786,24 € amb IVA), que es sotmetrà a informació pública durant 20 dies hàbils, per a procedir després a la licitació de les obres.
Les obres consistiran en la rehabilitació integral de l'edifici, mantenint-se les façanes principals en estar protegides. Es mantindran les plantes existents, creant un nou nucli de comunicacions accessible, creant espais a doble alçada i oberts a l'exterior, i promovent l'ús de la música a planta primera i cambra, així com mantenint l'ús de cafeteria a la planta baixa, amb una zona habilitada per a concerts dins de la pròpia cafeteria, i connectant l'edifici amb el contigu, destinat com punt d'informació i/o oficina de turisme.
El projecte abasta dos edificis, els quals es destinaran per una banda a la música (complint així el desig de les persones que el van cedir a l'Ajuntament, els germans Comes) i cafeteria, mentre que l'altre donarà un ús de punt d'informació i trobada o oficina de turisme.
Pel que fa al Centre Artístic Musical, la planta baixa planteja un espai cobert a doble alçada connectat directament a l'exterior, que servisca com a Hall i connexió amb el nucli de comunicacions i cafeteria, així com amb el punt d'informació. Aquest nucli de comunicacions disposarà d'escala i ascensor, així com donarà accés a un magatzem en planta baixa i als lavabos a les plantes superiors. La cafeteria disposarà també d'espai de bar, escenari de concerts i lavabos per als clients, així com de cuina i espai de magatzem propis. A la primera planta hi ha una sala de música amb accés al balcó de façana i a la cambra una sala polivalent.
En el mateix ple, es van aprovar altres dos punts amb els vots favorables de Compromís i socialistes i l’abstenció del PP; d’una banda, un reconeixement extrajudicial de crèdits per valor de 51.447,10 €, per a finançar serveis de recollida i gestió de voluminosos d’octubre; serveis de recollida i gestió de residus verd i poda d’octubre; despeses de manteniment a la comunitat de regants; manteniment arbres, oliveres, tarongers, garroferes i tractament fitosanitari a les palmeres; realització comunicació institucional de l'Ajuntament de Pedreguer en xarxes socials, tercer trimestre 2025; concert escolania de Ntra.Sra. dels Desemparats de València en la Iglesia de la Santa Creu, el 5 d’octubre en el Festival Internacional d’Orgue de Pedreguer; projecte de millora viària, senyalització i sanejament operatiu; caseta factor 8 x 60 indoor; intervenció professional en el Procediment Ordinari no519/24; serveis tècnics a la PISTA el mes de setembre de 2025. I d’altra banda una modificació de crèdit de 174.072,40 €, finançada amb càrrec al romanent líquid de tresoreria. Així, eixos diners aniran destinats a despeses de programes europeus (cobertes amb les subvencions europees rebudes), despeses programació actv. Culturals, tractament i transport de residus, estudis tècnics (entre altres, un per estudiar l'inici d'una cooperativa d'habitatge), adquisició d'una desbrossadora i una aportació a la Entitat de Gestió i Modernització Les Galgues, per escometre un estudi d'inundabilitat.
Per unanimitat s'aprovava altre punt de l’ordre del dia, la proposta de modificació d’Ordenança fiscal reguladora de les plusvàlues, que equipara les parelles de fet als cònjuges per poder beneficiar-se de la bonificació del 75% en cas de mort, així com l’eliminació de la necessitat que els interessats hagen de demanar-la, servint també allò manifestat pel Notari en Escriptura pública.
L’únic punt aprovat que va comptar amb vots contraris, els del PP, va ser la proposta de modificació d’Ordenança fiscal reguladora de l’Impost sobre Béns Immobles (IBI) de Naturalesa Urbana. L’objectiu de la proposta era recaptar uns pocs ingressos més per poder invertir en millores en el casc urbà, per fer front a les pujades de matèries primeres o per aplicar l’augment anual corresponent a despeses de personal, mantenint a més les despeses corrents. La proposta de l’equip de govern tenia com a objectiu recaptar al voltant de 270.000 € més, pujant el tipus de gravamen de l’IBI dels immobles urbans, després de molts anys congelat, del 0,56 al 0,62, mantenint en 0,60 els rústics i en 1,3 els de característiques especials, que, a efectes pràctics, significa una pujada de 23 euros per rebut en vivendes d’al voltant de 100 metres quadrats dins del poble, o entre 21,42 i 47,57 en els pisos més comuns.
Sergi Ferrús Peris, Alcalde de Pedreguer i al front de la Regidoria d’Hisenda, també ha volgut aclarir que disposar d’un romanent de tresoreria de més d’un milió d’euros “no ens serveix per quadrar pressupostos, perquè, com hem explicat ja moltes vegades, eixos diners no poden començar a gastar-se fins al segon trimestre de l’any; en segon lloc, fa uns anys (pel tema de la pandèmia) que es permet el seu ús per a despeses de tot tipus, però s'ha tornat a legislar per tal que només es puga gastar en despeses financerament sostenibles (no servirà, doncs, ni per a jornals ni per energia); i en tercer lloc, el nostre poble ha tingut la sort, gràcies a la gestió de regidores i regidors dels equips de govern que he tingut l’honor de presidir, de poder disposar cada any de més d’un milió d’euros en romanent, que, a pesar del que pot pensar molta gent, no es queda en els bancs, sinó que s’ha emprat, entre altres coses, per a poder posar la part municipal en els més de 6 milions d’euros que el nostre ajuntament ha pogut ingressar de diputació i GV des de 2019 en subvencions, o per a fer modificacions de crèdit en el dia a dia municipal: per exemple, en agost de 2022 es van dedicar 100.482,04 euros finançats amb el romanent de tresoreria per fer front al servei d'infermeria escolar del mes de juny, els interessos de Suma i entitats bancàries, la restauració i habilitació de patrimoni cultural -referents al castell de l'Ocaive-, obres de millora de camins -condicionament del Camí de les Passeres-, avantprojectes del Pla Convivint -obres residència del Carme i residència de diversitat funcional- i el Pla edificant del CP Trinquet; o més recentment, el mes passat mateix, per a poder dotar de diners l'augment de preu de la rehabilitació de la Musical... i és un exemple del que al llarg de l'any fem amb el famós romanent de tresoreria".
[vídeo de la sessió ací]
