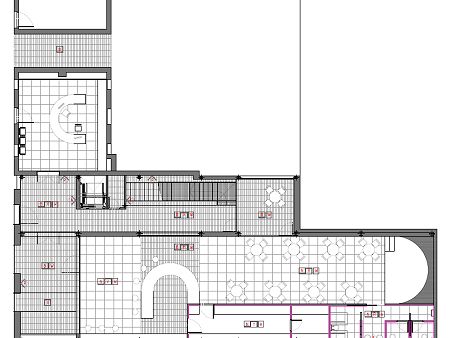
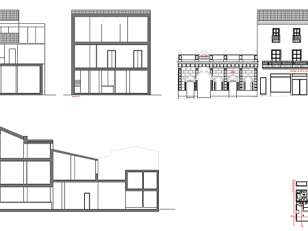
Aprovat inicialment el projecte d'execució per a la rehabilitació de l'edifici centre artístic musical
El Ple de la Corporació, en sessió ordinària celebrada el 30 d’octubre de 2025, ha aprovat inicialment el projecte d'execució per a la rehabilitació de l'edifici "Centre Artístic Musical", redactat per l'arquitecta, Beatriz García Morales, COACV núm. 08913, amb un pressupost d’execució de contracta de 1.185.773,75 €, IVA exclòs.
Aquest projecte és finançat parcialment per les subvencions de l'Excma. Diputació Provincial d'Alacant per al Pla "PLANIFICA": Pla Provincial de Cooperació a les Obres i Serveis de competència municipal 2024-2027, i de la Conselleria de Vivenda i Arquitectura Climàtica, per al Pla Conviure 2022: Rehabilitació d’edificis.
D'acord amb la base catorzena que regula la subvenció de la Diputació provincial d'Alacant, així com l'article 83 de la Llei 39/2015, d'1 d'octubre, del Procediment Administratiu Comú de les administracions públiques se sotmet a informació pública pel termini de vint dies, a contar des de l'endemà al de publicació del present anunci en el Butlletí Oficial de la Província d'Alacant.
El projecte íntegre estarà a la disposició de les persones interessades en la Seu electrònica d'aquest Ajuntament [http://pedreguer.sedelectronica.es].
Considerar aprovat definitivament el projecte de referència, en cas de no formular-se reclamacions.
